Courtesy of RE/MAX Crown Real Estate

1445 Park Street #100, Commercial for lease in Glen Elm Park Regina , Saskatchewan , S4R 1Y8

 MLS® # SK027273

5,413 sqft

Sign up to View

Days on Market

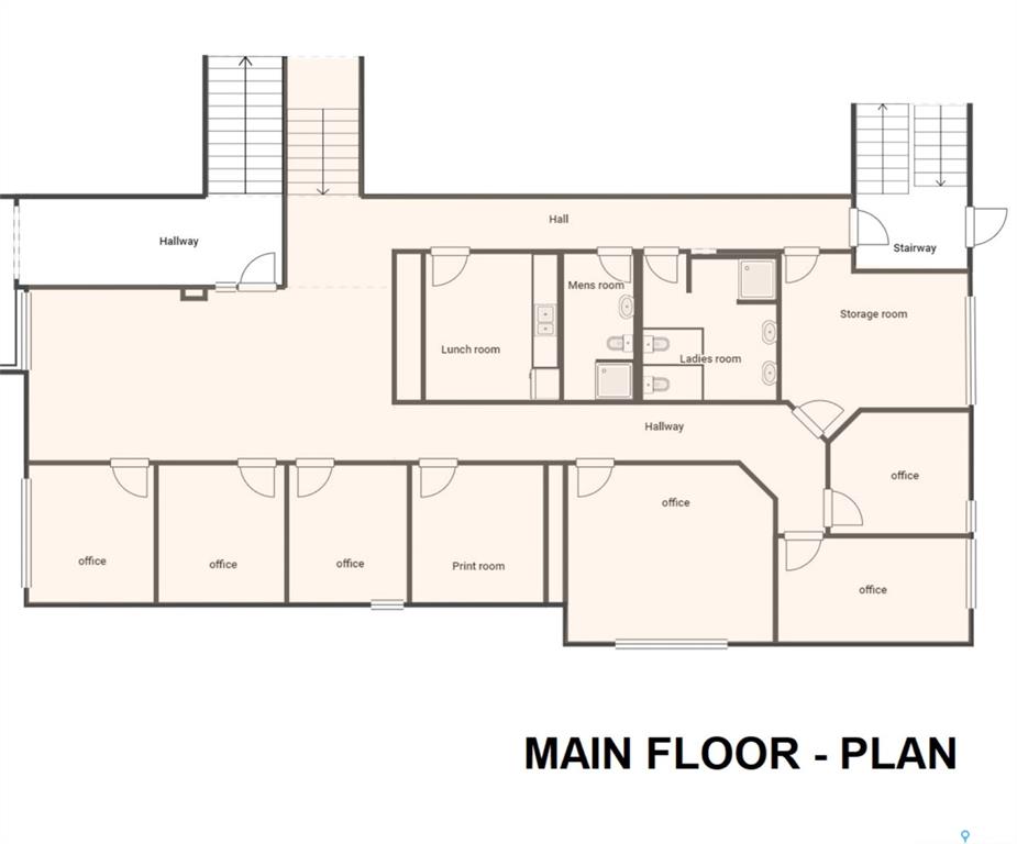
Available for rent immediately. This turnkey office space is 5,413 Sqft and is located on the main and lower level. Tremendous amount of value for any business looking for office space. Excellent set up and configuration featuring 8 parking stalls(option for more), boardroom, 17 private offices(various sizes), and library area. Also conveniently located to Ring Road access with Tim Hortons across the street. Operating costs includes all utilities.

Essential Information

  • MLS® #
    SK027273
  • Year Built
    1983
  • Property Type
    Commercial
  • Property Subtype
    Office
  • MLS® #
    SK027273
  • Year Built
    1983
  • Property Type
    Commercial
  • Property Subtype
    Office
  • MLS® #
    SK027273
  • Year Built
    1983
  • Property Type
    Commercial
  • Property Subtype
    Office

Community Information

  • Neighbourhood
    Glen Elm Park
  • Postal Code
    S4R 1Y8
  • Neighbourhood
    Glen Elm Park
  • Postal Code
    S4R 1Y8
  • Neighbourhood
    Glen Elm Park
  • Postal Code
    S4R 1Y8

Interior

  • Heating
    Hot Water
  • Heating
    Hot Water
  • Heating
    Hot Water

Exterior

  • Construction
    Mixed
  • Construction
    Mixed
  • Construction
    Mixed

Additional Details

  • Ownership Title
    Leasehold
  • Ownership Title
    Leasehold
  • Ownership Title
    Leasehold

$14/sqft

1445 Park Street #100

Schedule Tour
Contact Agent

$1/month
Est. Monthly Payment
$
$
%
Learn More