Courtesy of Ottawa Real Estate Co. Ltd.

Prestige Corridor, Commercial for sale Moose Jaw Rm No. 161 , Saskatchewan , S6H 4P8

 MLS® # SK027428

Sign up to View

Days on Market

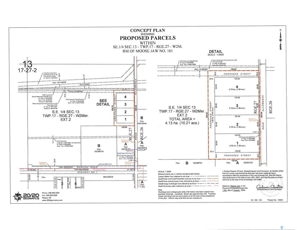
If you're looking for commercial lots to build your business then these lots are available just off Hwy #1. Each lot is 1.89acres and has approval for septic tank with septic field in the future when all 4 lots are sold. 4" gas line and 3 phase power that run to the south property (Norheims). Water lines to the property line. There is a road approved for the west side of lots. Call for more information.

Essential Information

  • MLS® #
    SK027428
  • Property Type
    Commercial
  • Property Subtype
    Land
  • MLS® #
    SK027428
  • Property Type
    Commercial
  • Property Subtype
    Land
  • MLS® #
    SK027428
  • Property Type
    Commercial
  • Property Subtype
    Land

Community Information

  • Postal Code
    S6H 4P8
  • Postal Code
    S6H 4P8
  • Postal Code
    S6H 4P8

Additional Details

  • Ownership Title
    Freehold
  • Nearest Town
    Moose Jaw
  • Ownership Title
    Freehold
  • Nearest Town
    Moose Jaw
  • Ownership Title
    Freehold
  • Nearest Town
    Moose Jaw

$185,000

Prestige Corridor

Schedule Tour
Contact Agent

$843/month
Est. Monthly Payment
$
$
%
Learn More